18:00 Реновация в Кунцеве: визуализация дома по ул. Молодогвардейская, вл. 44 | |
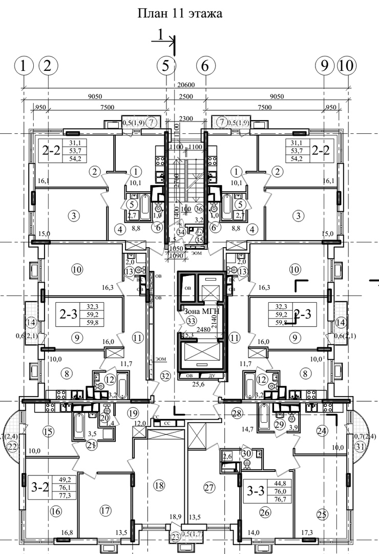
Новая визуализация от Фонда реновации стартового дома по реновации: Р-он Кунцево (ЗАО), ул. Молодогвардейская, вл. 44 Проект дома по реновации с инженерными сетями и благоустройством территории по адресу: РАЙОН КУНЦЕВО, УЛ. МОЛОДОГВАРДЕЙСКАЯ, Д. 44 (ЗАПАДНЫЙ АДМИНИСТРАТИВНЫЙ ОКРУГ) АКЦИОНЕРНОЕ ОБЩЕСТВО “КОНСТРУКТОРСКО-ТЕХНОЛОГИЧЕСКОЕ БЮРО БЕТОНА И ЖЕЛЕЗОБЕТОНА” АО “КТБ ЖБ” Планировка: Жилой дом 11-ти этажный, односекционный башенного типа, с подземной автостоянкой. - жилая часть (2-11 эт.) – 10 этажей Количество квартир, в том числе: 69 -однокомнатных - 22 -двухкомнатных - 32 -трехкомнатных - 15 Вертикальная связь по этажам осуществляется по лестнице и лифтами с грузоподъемностью 630 кг (с режимом перевозки пожарных подразделений и МГН) и 400 кг Описание: Этажность: 11 Ввод в эксплуатацию: 2020 г. Количество квартир: 69 1-комнатных квартир: 22 2-комнатных квартир: 32 3-комнатных квартир: 15 Материал: монолит Высота потолков: 2.7 Паркинг: подземный Состояние монтажа: монолитные конструкции подземной части Функциональное назначение - Стартовые площадки реновации 2020-21 гг. Вид работ - Новое строительство Источник финансирования - средства МФР Серия проекта - Индивидуальный Автор проекта - АО КТБ ЖБ (Монолитстрой 77) Срок ввода - 2020 Застройщик - «МФР» Участок строительства площадью 0,2234 ± 0,0016 га расположен в г. Москва, Западный административный округ, район Кунцево, ул. Молодогвардейская, вл. 44. Основанием для выполнения проекта является Градостроительный план земельного участка № РШ 77145000-035318. Проектируемый участок ограничен: - с севера - территорией участка Западного окружного военного комиссариата ; - с востока - ул. Партизанская; - с юга - ул. Молодогвардейская; - с запада - территорией двух пятиэтажных зданий института с общежитием. Рельеф участка спокойный. В настоящее время территория свободна от застройки. Зеленые насаждения по периметру участка представлены деревьями и кустарниками. Генеральный план и вертикальная планировка решены в увязке с окружающей застройкой и существующими проездами. Предусмотрены пожарные проезды с двух продольных сторон здания. С восточной стороны (ул. Партизанская) проезд тупиковый с разворотной площадкой 15 x 15 м для пожарной техники. Жилой дом обеспечен комплексным благоустройством с установкой малых архитектурных форм, устройством газонов и пешеходных дорожек. Транспортное обслуживание жилого дома предусматривается с улиц Молодогвардейская и Партизанская. Расчет количества машиномест выполнен согласно СП 42.13330.2011 для проживающих в доме 128 человек (30 кв. м на чел.). Количество машиномест для постоянного хранения: 350 x 0,128 x 0,9 = 40 м/мест. Количество открытых автостоянок для временного хранения: 350 x 0,128 x 0,25 = 11 м/мест. Количество м/мест для сотрудников БКФН на 8 сотрудников 0,08 x 5 = 0,4 (1 м/место). Места для постоянного хранения автомобилей предусматриваются на подземной автостоянке (35 м/мест). Запроектирована открытая гостевая автостоянка возле дома на 11 м/мест, из которых одно место предназначено для машины инвалида и 1 м/место - для сотрудников БКФН. Предельные параметры разрешенного строительства на участке: предельная плотность застройки - 25 тыс. кв. м/га; предельная высота - 50 метров (по проекту - 41,1 м); суммарная поэтажная площадь здания в габаритах наружных стен по ГПЗУ - 5585 кв. м (по проекту - 5585 кв. м). Жилой дом односекционный, габариты в осях 20,6 x 25,8 м. Здание 11-этажное, из которых 10 этажей - жилые, с подземной автостоянкой. Высота жилых этажей от пола до пола 3 метра . На первом этаже размещаются входная группа жилого дома и нежилые помещения класса без конкретного функционального назначения с возможностью размещения центра информации. Высота первого этажа - 4,2 метра в чистоте. В подземной части здания запроектированы автостоянка на 35 машиномест, из которых 1 м/место для инвалида, и технические помещения. В доме предусматриваются два лифта, один из которых предназначен для подъема пожарных подразделений и МГН. В жилом доме запроектировано 69 квартир различной планировки, из которых однокомнатных - 22 шт., жилая площадь не менее 20 кв. м; - двухкомнатных - 32 шт., жилая площадь не менее 31 кв. м; - трехкомнатных - 15 шт., жилая площадь не менее 42 кв. м. Во всех квартирах запроектированы остекленные балконы или лоджии. Для беспрепятственного попадания инвалидов в здание все входы располагаются в уровне земли. Для подъема инвалидов на все этажи здания используется лифт грузоподъемностью 630 кг. На всех жилых этажах и в подземной автостоянке предусмотрены пожаробезопасные зоны для МГН. В здании используется система навесных вентилируемых фасадов, по монолитным наружным стенам и стенам из газобетонных блоков, витражные конструкции. Применяется облицовка керамогранитом и фиброцементными плитами. Оконные блоки - стеклопакеты в ПВХ переплетах. Во всех квартирах остекленные лоджии. Оконные блоки и двери – ПВХ с двухкамерным стеклопакетом. На придомовой территории выделена зона размещения детских и игровых площадок, площадок для отдыха и спорта. Проектное решение дома обеспечивает комфортную и доступную среду для перемещения родителей с колясками и маломобильных групп населения. Технические решения дома обеспечивают своевременную эвакуацию людей и их защиту от опасных факторов пожара, доступ личного состава пожарных подразделений и подачу средств пожаротушения ![]() ![]() Источники: Фонд Реновации Комплекс градостроительной политики и строительства города Москвы | |
|
| |
| Всего комментариев: 3 | ||||
| ||||
Сайт жителей района - Кунцево Онлайн 








