12:00 Проект стартового дома по программе реновации: ул. Бобруйская, вл.15/1 | |
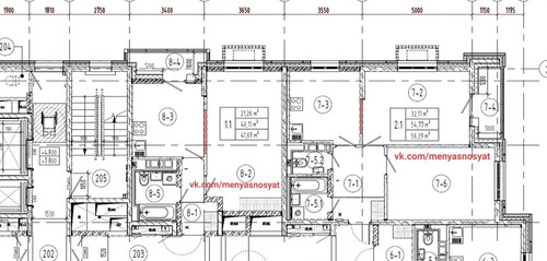
| ЗАО, район Кунцево, ул. Бобруйская, влд.15/1 Новый проект стартового дома по программе реновации в ЗАО, район Кунцево, ул. Бобруйская, влд.15/1. Одно-секционный, 11-этажный, монолитный жилой дом, индивидуальный проект. Количество квартир всего - 80 Однокомнатных - 28 Двухкомнатных - 32 Трёхкомнатных - 18 В том числе для МГН - 2 Проектировщик - ОАО "Москапстрой" План земельного участка: План 1 этажа: План 2-3 этажей: План 4-7 этажей: План 8-11 этажей: Новая визуализация от Фонда реновации стартового дома в ЗАО, район Кунцево, ул. Бобруйская, влд.15/1: Этажность: 11 Ввод в эксплуатацию: 2021 г. Количество квартир: 80 1-комнатных квартир: 28 2-комнатных квартир: 34 3-комнатных квартир: 18 Материал: монолит Высота потолков: 2.67 Состояние монтажа: подготовительный период О ПРОЕКТЕ Настоящий проект предусматривает строительство 11-этажного односекционного жилого дома по индивидуальному проекту. На вентилируемых фасадах, облицованных композитными панелями графитового цвета и «под дерево», устанавливаются декоративные корзины для кондиционеров. Первый этаж оформлен витражным остеклением. В доме запроектированы две двухкомнатные квартиры для маломобильных групп населения. Первый этаж нежилой — на нем размещаются объекты инфраструктуры и технические помещения для обслуживания жилого дома. Во входных группах предусматриваются помещения для консьержа и колясочная. Проектное решение дома обеспечивает комфортную и доступную среду для перемещения родителей с колясками и маломобильных групп населения. На придомовой территории выделены зоны размещения спортивной и детской площадок, а также площадки для отдыха. Благоустройство придомовой территории предусматривает озеленение: посадку деревьев и кустарников, устройство газонов и цветников. Во всех квартирах запроектированы остекленные лоджии и балконы. Оконные блоки – ПВХ с двухкамерным стеклопакетом. Технические решения дома обеспечивают своевременную эвакуацию людей и их защиту от опасных факторов пожара, доступ личного состава пожарных подразделений и подачу средств пожаротушения. Вариант 1: Вариант 2: Вариант 1: Вариант 2: Вариант 1: Вариант 2: Вариант 1: Вариант 2: Вариант 1: Вариант 2: Источник: Засносцы Москвы, все о реновации Проект | |
|
| |
| Всего комментариев: 3 | ||||
| ||||
Сайт жителей района - Кунцево Онлайн 







































